Establishing secure connection…Loading editor…Preparing document…
We are not affiliated with any brand or entity on this form.
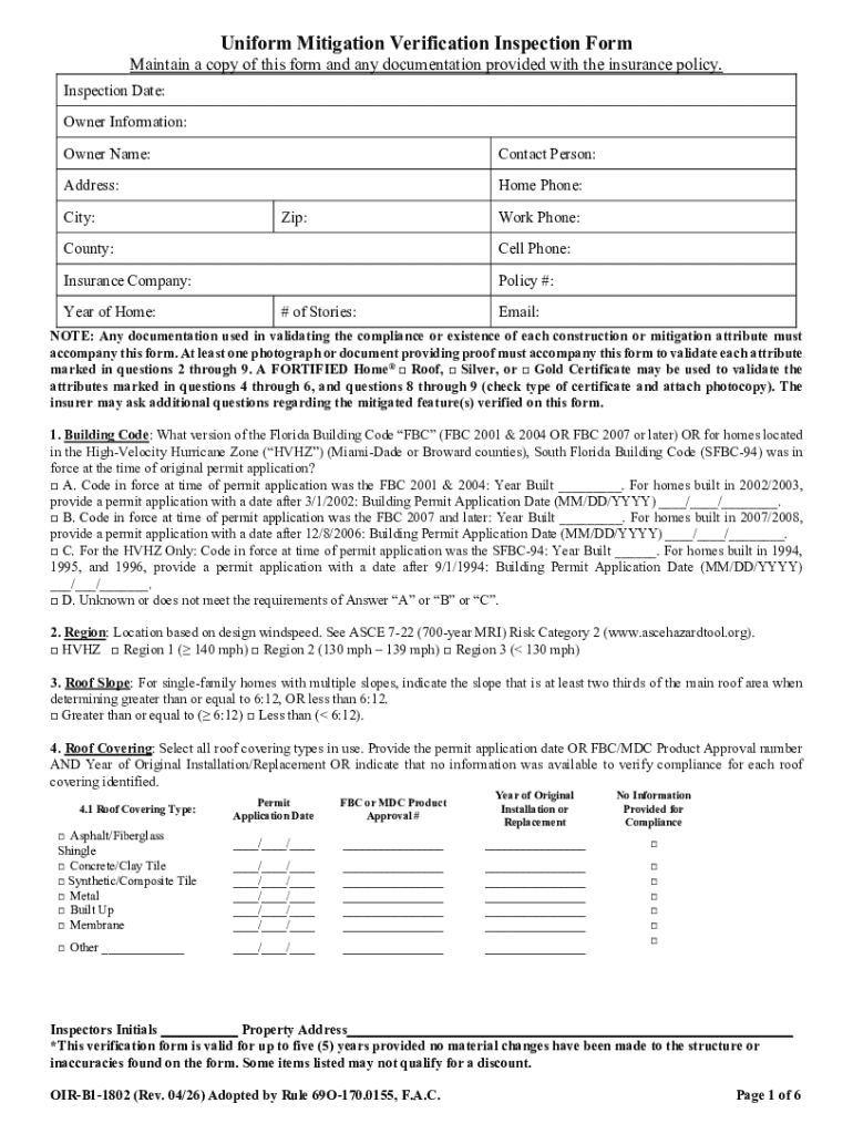
Uniform Mitigation Verification Inspection Form Floir
Handy tips for filling out Uniform Mitigation Verification Inspection Form Floir online
Quick steps to complete and e-sign Uniform Mitigation Verification Inspection Form Floir online:
- Use Get Form or simply click on the template preview to open it in the editor.
- Start completing the fillable fields and carefully type in required information.
- Use the Cross or Check marks in the top toolbar to select your answers in the list boxes.
- Utilize the Circle icon for other Yes/No questions.
- Look through the document several times and make sure that all fields are completed with the correct information.
- Insert the current Date with the corresponding icon.
- Add a legally-binding e-signature. Go to Sign -> Add New Signature and select the option you prefer: type, draw, or upload an image of your handwritten signature and place it where you need it.
- Finish filling out the form with the Done button.
- Download your copy, save it to the cloud, print it, or share it right from the editor.
- Check the Help section and contact our Support team if you run into any difficulties while using the editor.
We know how straining filling in forms could be. Get access to a GDPR and HIPAA compliant solution for maximum efficiency. Use signNow to electronically sign and send out Uniform Mitigation Verification Inspection Form Floir for e-signing.
be ready to get more
Create this form in 5 minutes or less
Create this form in 5 minutes!
How to create an eSignature for the uniform mitigation verification inspection form floir
How to create an electronic signature for a PDF online
How to create an electronic signature for a PDF in Google Chrome
How to create an e-signature for signing PDFs in Gmail
How to create an e-signature right from your smartphone
How to create an e-signature for a PDF on iOS
How to create an e-signature for a PDF on Android
Get more for Uniform Mitigation Verification Inspection Form Floir
- Infant feeding plan scpitc scpitc form
- Form renewbiz grant program application co kern ca
- Marion county section 8 form
- Burial society membership form 382501816
- U s air force form af2827 download
- Canada record check criminal form
- Www research va gov guidance woc checklistwithout compensation employee checklist veterans affairs form
- Valuation contract template form
Find out other Uniform Mitigation Verification Inspection Form Floir
- Electronic signature West Virginia Education Contract Safe
- Help Me With Electronic signature West Virginia Education Business Letter Template
- Electronic signature West Virginia Education Cease And Desist Letter Easy
- Electronic signature Missouri Insurance Stock Certificate Free
- Electronic signature Idaho High Tech Profit And Loss Statement Computer
- How Do I Electronic signature Nevada Insurance Executive Summary Template
- Electronic signature Wisconsin Education POA Free
- Electronic signature Wyoming Education Moving Checklist Secure
- Electronic signature North Carolina Insurance Profit And Loss Statement Secure
- Help Me With Electronic signature Oklahoma Insurance Contract
- Electronic signature Pennsylvania Insurance Letter Of Intent Later
- Electronic signature Pennsylvania Insurance Quitclaim Deed Now
- Electronic signature Maine High Tech Living Will Later
- Electronic signature Maine High Tech Quitclaim Deed Online
- Can I Electronic signature Maryland High Tech RFP
- Electronic signature Vermont Insurance Arbitration Agreement Safe
- Electronic signature Massachusetts High Tech Quitclaim Deed Fast
- Electronic signature Vermont Insurance Limited Power Of Attorney Easy
- Electronic signature Washington Insurance Last Will And Testament Later
- Electronic signature Washington Insurance Last Will And Testament Secure
be ready to get more
Get this form now!
If you believe that this page should be taken down, please follow our DMCA take down process here.