Establishing secure connection…Loading editor…Preparing document…
We are not affiliated with any brand or entity on this form.
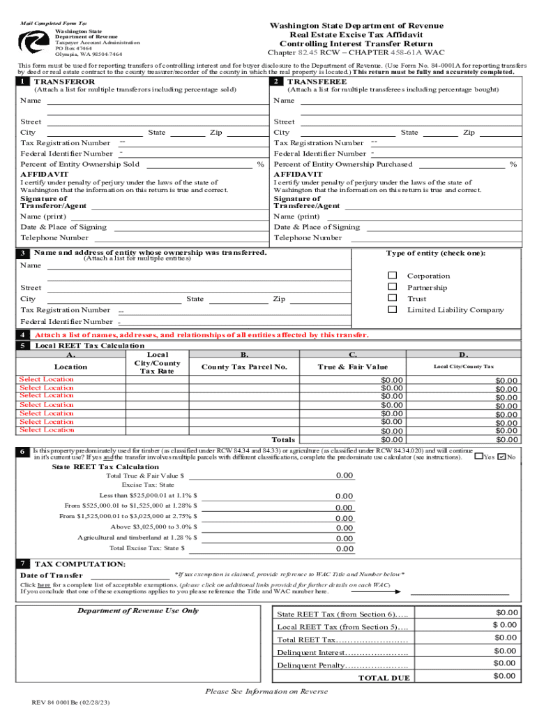
Real Estate Excise Tax Affidavit Form
be ready to get more
Create this form in 5 minutes or less
Create this form in 5 minutes!
How to create an eSignature for the real estate excise tax affidavit
How to create an electronic signature for a PDF online
How to create an electronic signature for a PDF in Google Chrome
How to create an e-signature for signing PDFs in Gmail
How to create an e-signature right from your smartphone
How to create an e-signature for a PDF on iOS
How to create an e-signature for a PDF on Android
Get more for Real Estate Excise Tax Affidavit
- Residential interior remodel form
- City of harlingen tx 138 hub bizrisk management insurance claims etc city of harlingen form
- Tx driving safety course form
- Holley by the sea hoa rules form
- Itsfm031 its field equipment site attribute form florida dot state fl
- Fdot form 700 050 10
- Mcd 467 548135438 form
- Interstate driver certification form
Find out other Real Estate Excise Tax Affidavit
- Electronic signature Utah Mobile App Design Proposal Template Fast
- Electronic signature Nevada Software Development Agreement Template Free
- Electronic signature New York Operating Agreement Safe
- How To eSignature Indiana Reseller Agreement
- Electronic signature Delaware Joint Venture Agreement Template Free
- Electronic signature Hawaii Joint Venture Agreement Template Simple
- Electronic signature Idaho Web Hosting Agreement Easy
- Electronic signature Illinois Web Hosting Agreement Secure
- Electronic signature Texas Joint Venture Agreement Template Easy
- How To Electronic signature Maryland Web Hosting Agreement
- Can I Electronic signature Maryland Web Hosting Agreement
- Electronic signature Michigan Web Hosting Agreement Simple
- Electronic signature Missouri Web Hosting Agreement Simple
- Can I eSignature New York Bulk Sale Agreement
- How Do I Electronic signature Tennessee Web Hosting Agreement
- Help Me With Electronic signature Hawaii Debt Settlement Agreement Template
- Electronic signature Oregon Stock Purchase Agreement Template Later
- Electronic signature Mississippi Debt Settlement Agreement Template Later
- Electronic signature Vermont Stock Purchase Agreement Template Safe
- Electronic signature California Stock Transfer Form Template Mobile
be ready to get more
Get this form now!
If you believe that this page should be taken down, please follow our DMCA take down process here.